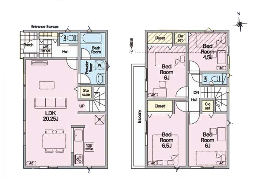
【 新築戸建 】江戸川区東小岩 全1棟 (当社専任物件)
| 所在地 | 江戸川区東小岩4丁目 |
| 交通 | JR中央・総武線「小岩」駅 徒歩17分 |
| 権利 | 所有権 |
| 敷地面積 | 約99.62㎡ |
| 地目 | 宅地 |
| 構造 | 木造サイディング貼2階建 |
| 建物面積 | 約95.58㎡ |
| 接道 | 南側公道約5.35m |
| 用途地域 | 第一種住居地域 |
| 都市計画 | 市街化区域 |
| 建蔽率・容積率 | 60% / 200% |
| その他法令 | 第二種高度地区・景観法・航空法・準防火地域 |
| 設備 | 公営水道・公共下水・東京電力・都市ガス |





【 売地 】江戸川区東小岩 全1区画
【 建築条件付き売地 】狛江市西野川 全2区画 (媒介)
| 所在地 | 狛江市西野川2丁目 |
| 権利 | 所有権 |
| 敷地面積 | A区画・B区画 約127.03㎡・約127.03㎡ |
| 地目 | 宅地 |
| 接道 | 南側幅員約4m私道 (私道面積22㎡:持分1/1あり・第43条2項2号) |
| 用途地域 | 第一種低層住居専用地域 |
| 建蔽率・容積率 | 40% / 80% |
| 設備 | 公営水道・公共下水・東京電力・都市ガス |
| 現況 | 更地 |
【 売地 】八王子市石川町 全1区画 (売主代理)
| 所在地 | 八王子市石川町 |
| 権利 | 所有権 |
| 敷地面積 | 約183.85㎡ |
| 地目 | 宅地 |
| 接道 | 南側幅員約5.3m、西側幅員約4.27m |
| 用途地域 | 第一種低層住居専用地域 |
| 建蔽率・容積率 | 40% / 80% |
| 設備 | 公営水道・公共下水・東京電力・都市ガス |
| 現況 | 更地 |
【 新築戸建 】昭島市中神町 全2棟 (当社専任物件)
| 所在地 | 昭島市中神町1丁目 |
| 交通 | JR青梅線「中神」駅 徒歩12分 |
| 権利 | 所有権 |
| 敷地面積 | [1号棟] 約116.73㎡ [2号棟] 約115.87㎡ |
| 地目 | 宅地 |
| 構造 | 木造サイディング造アスファルトシングル葺2階建 |
| 建物面積 | [1号棟] 約90.45㎡ [2号棟] 約87.27㎡ |
| 接道 | 西側 私道約4m |
| 用途地域 | 第一種低層住居専用地域 |
| 都市計画 | 市街化区域 |
| 建蔽率・容積率 | 40% / 80% |
| その他法令 | 第一種高度地区・景観法・航空法 |
| 設備 | 公営水道・公共下水・東京電力・都市ガス |
【 売地 】武蔵村山市学園 全3区画
| 所在地 | 武蔵村山市学園3丁目 |
| 権利 | 所有権 |
| 敷地面積 | 約122.96㎡~約172.14㎡ (協定面積 8.12㎡・8.37㎡) (セットバック部分 0.43㎡・0.52㎡・1.37㎡) |
| 地目 | 宅地 |
| 接道 | 東側 約3.67m |
| 用途地域 | 第一種低層住居専用地域 |
| 建蔽率・容積率 | 40% / 80% |
| 設備 | 公営水道・公共下水・東京電力・プロパンガス |
| 現況 | 更地 |
【 売地 】昭島市中神町 全2区画
| 所在地 | 昭島市中神町1丁目 |
| 権利 | 所有権 |
| 敷地面積 | [1号区] 約115.77㎡ [2号区] 約116.95㎡ |
| 地目 | 宅地 |
| 接道 | 西側 公道・私道約4.0~4.05m (私道持分なし・通行掘削承諾書あり) |
| 用途地域 | 第一種低層住居専用地域 |
| 建蔽率・容積率 | 40% / 80% |
| 設備 | 公営水道・公共下水・東京電力・都市ガス |
| 現況 | 更地 |
【 売地 】昭島市緑町
物件概要
| 所在地 | 昭島市緑町1丁目 |
| 権利 | 所有権 |
| 敷地面積 | 約83.15㎡ |
| 地目 | 宅地 |
| 接道 | 北西側 約4.5m(私道・持分有) |
| 用途地域 | 第一種低層住居専用地域 |
| 建蔽率・容積率 | 40% / 80% |
| 設備 | 公営水道・公共下水・東京電力・プロパンガス |
| 現況 | 古家あり |
【 売地 】国分寺市東恋ヶ窪
物件概要
| 所在地 | 国分寺市東恋ヶ窪5丁目 |
| 権利 | 所有権 |
| 敷地面積 | 約151.7㎡(セットバック部分4.8㎡) |
| 地目 | 宅地 |
| 接道 | 南側 約4m |
| 用途地域 | 第一種低層住居専用地域 |
| 建蔽率・容積率 | 40% / 80% |
| 設備 | 公営水道・公共下水・東京電力・個別プロパンガス(都市ガス) |
| 現況 | 古家あり(更地渡し予定) |
| 備考 | 前面道路都市ガス管あり宅地内引込可能 一部地上権設定あり |
【 中古マンション 】めじろ台コーポラス
物件概要
| 所在地 | 八王子市狭間町1450-1 |
| 権利 | 所有権 |
| 専有面積 | 壁芯66.24㎡ |
| バルコニー | 6.67㎡ |
| 構造 | 鉄骨鉄筋コンクリート造地上11階 |
| 用途地域 | 近隣商業地域 |
| 間取り | 2LDK |
| 建蔽率・容積率 | 50% / 100% |
| 施設 | 給湯・ガス湯沸かし器 公営水道・公共下水・東京電力・都市ガス エレベーターあり 敷地内駐車場あり |
| 現況 | 空家 |














【 売地 】西東京市富士町
物件概要
| 所在地 | 西東京市富士町4丁目 |
| 権利 | 所有権 |
| 敷地面積 | 約106.43㎡(セットバック部分約3.16㎡含む) |
| 地目 | 宅地 |
| 接道 | 北側 約3.6m私道 |
| 用途地域 | 第一種低層住居専用地域 |
| 防火指定 | 準防火地域 |
| 建蔽率・容積率 | 50% / 100% |
| 設備 | 公営水道・公共下水・東京電力・都市ガス |
| 現況 | 更地 |











